Zwaartepunt
Het zwaartepunt van een object is het punt ten opzichte waarvan de massa van dat object in evenwicht is. In dit punt wordt in de natuurkunde de zwaartekracht gedacht aan te grijpen, als zij wordt voorgesteld als een puntlast. Gewichtszwaartepunt en massazwaartepunt worden soms gebruikt om deze definitie te onderscheiden van die van het meetkundige zwaartepunt.
In de natuurkunde heet het zwaartepunt van de massa van een of eventueel meer voorwerpen daarvan het massamiddelpunt. Het gewichtszwaartepunt kan men zich als volgt voorstellen: als in het zwaartepunt van een willekeurige tweedimensionale figuur een gat wordt gemaakt, en daardoorheen een spijker wordt gestoken, dan zal de figuur geen voorkeurspositie aannemen. De figuur zal in iedere willekeurige stand, ten opzichte van een denkbeeldig horizontaal vlak, in evenwicht zijn.
Het meetkundige zwaartepunt is de gemiddelde positie van alle punten waaruit het object of lichaam bestaat, terwijl het massazwaartepunt de gewogen gemiddelde positie van die punten is, waarbij de massa van elk punt het relatieve belang ervan aangeeft.
Het meetkundige zwaartepunt van een driehoek is het snijpunt van de drie zwaartelijnen, die elk van een van de hoekpunten naar het midden van de tegenovergelegen zijde lopen.
Wiskundige definitie
Indien de oppervlakte van een begrensd gebied van het tweedimensionale vlak berekenbaar is, kan het zwaartepunt van het gebied bepaald worden via de formule:
Hierbij wordt een infinitesimaal klein deeltje met oppervlakte uit het binnengebied van gebied genomen. De oppervlakte van dit deeltje wordt dan vermenigvuldigd met de - en de -coördinaat van het zwaartepunt van het deeltje. Doordat het deeltje oneindig klein is, is het een punt. Hierdoor zijn de coördinaten van het zwaartepunt gelijk aan de coördinaten van het deeltje. Dit wordt dan geïntegreerd over het volledige binnengebied van Deze term wordt ook het statisch moment, in de -richting resp. in de -richting, genoemd. Door deze term door de oppervlakte van te delen, verkrijgt men de - en de -coördinaat van het zwaartepunt van
Meer algemeen kan men analoog het zwaartepunt van een deelverzameling van de euclidische ruimte van willekeurige dimensie bekijken. Het bestaat niet voor elke deelverzameling: er zijn deelverzamelingen waarbij de integralen niet alle bestaan, of waarbij we oneindig door oneindig of nul door nul zouden moeten delen. Bij een kromme in de twee- of meerdimensionale ruimte of een oppervlak in de driedimensionale ruimte moet de definitie aangepast worden (overeenkomend met een "massa" per lengte- of oppervlakte-eenheid) om niet nul gedeeld door nul te krijgen.
Voor homogene fysieke objecten komt de wiskundige definitie overeen met de natuurkundige.
Voorbeeld

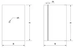
Berekening van het zwaartepunt van een rechthoek, met hoogte en breedte
De oppervlakte van de rechthoek wordt berekend door de hoogte met de breedte te vermenigvuldigen:
De term kan in beginsel op dezelfde manier berekend worden. Echter, omdat de hoogte niet van de -waarde afhangt, wordt in plaats van een infinitesimaal klein deeltje, een infinitesimaal dun strookje met breedte genomen. De oppervlakte van dit rechthoekig strookje is het product . Door te integreren over de breedte krijgt men de -coördinaat van het zwaartepunt.
Op analoge wijze kan ook bepaald worden:
In het algemeen, indien een figuur een spiegelsymmetrie bezit, dan ligt het zwaartepunt op de as van symmetrie. Een rechthoek heeft tegelijk een horizontale spiegelsymmetrie en een verticale spiegelsymmetrie. Het zwaartepunt ligt dus op het snijpunt van de twee assen, hetwelk het middenpunt is.
Indien een figuur een rotatiesymmetrie bezit, dan is het zwaartepunt het centrum van rotatie. Een rechthoek is ook rotatiesymmetrisch met als rotatiecentrum zijn middelpunt.
Zwaartepunt van een gebied onder de grafiek van een functie

Als een gebied ingesloten wordt door de grafiek van een functie en de -as in een interval , waarbij de functiewaarden positief zijn voor dit interval, is het mogelijk het zwaartepunt van dit gebied te berekenen met de formules:
Zwaartepunt van een fysiek object
Het zwaartepunt van een fysiek object is de gemiddelde positie van de massa, te berekenen door de positievector maal de infinitesimale massa dm te integreren, en het resultaat te delen door de totale massa (te berekenen door dm te integreren). Hierbij is gelijk aan de plaatselijke massadichtheid maal het infinitesimale volume .
In een homogeen zwaartekrachtveld is het moment van de op een object werkende zwaartekracht ten opzichte van het zwaartepunt van het object nul. Als het een star lichaam is, kan deze zwaartekracht geacht worden aan te grijpen in het zwaartepunt.