Ohmmeter

Een ohmmeter is een meetinstrument om de elektrische weerstand van een bepaalde stof, of van elektrische en elektronische componenten te meten.
Dit gebeurt door een elektrische spanning (die geleverd wordt door de batterij in de meter) aan te brengen over het te meten component en de resulterende elektrische stroom te meten. Via de wet van Ohm kan dan de elektrische weerstand worden berekend. Deze berekening is al op de meetschaal verwerkt, waardoor de weerstandswaarde rechtstreeks in ohm (Ω) kan worden afgelezen.
Voor metingen in het bereik van enkele ohms tot enkele honderden kΩ geldt dat een ohmmeter als los meetinstrument zelden of nooit als zodanig gemaakt wordt, maar vrijwel altijd beschikbaar is als meeteenheid van een multimeter.
Met een Brug van Wheatstone en diverse verfijningen daarvan kunnen weerstanden ook gemeten worden.
Isolatieweerstandsmeting

Bij het meten van weerstanden groter dan circa 1 MΩ (1 megaohm = 1 miljoen ohm) is een multimeter niet goed bruikbaar: de stroom die door de te meten weerstand loopt, wordt zo klein dat hij niet nauwkeurig genoeg te meten is. Een isolatieweerstandsmeter dient om dergelijke, heel grote weerstanden te meten. Een isolatieweerstandsmeter is een ohmmeter die speciaal is ontworpen voor het meten van weerstanden in het megaohmbereik. Hoewel megger in de volksmond een algemene term is geworden voor een megaohmmeter is het in feite een gedeponeerd merk van de Megger Group Ltd..
Een isolatieweerstandsmeter bevat een generator die een hoge meetspanning opwekt. Dat kan 250 volt, 500 volt of meer zijn. Ter vergelijking: een universeelmeter die als ohmmeter wordt ingezet gebruikt in het algemeen zijn batterijspanning als meetspanning: meestal 3 of 9 volt, afhankelijk van de gebruikte batterij. Ook bevat een isolatieweerstandsmeter een heel gevoelige stroommeter (in het microampèrebereik). Door de hoge meetspanning en de gevoelige stroommeter meet een isolatieweerstandsmeter veel beter heel hoge weerstanden dan een universeelmeter.
Aangezien de te leveren stroom heel klein is, kan een batterij toch volstaan als energiebron in een isolatieweerstandsmeter. Wel dient dan door een spanningsomvormer de lage batterijspanning omgezet in een hoge meetspanning - daarvoor zijn speciale schakelingen bekend en beschikbaar.
Isolatieweerstandsmeters worden in de praktijk meestal gebruikt voor het meten van isolatieweerstanden of lekweerstanden (in de installatietechniek). De metingen zijn vastgelegd in NEN 3140 en de NEN 1010, de weerstand moet dan meer dan 500 kΩ zijn voor zover het gaat over installatie met een nominale spanning van 400/230 V.
Milliohmmeter
Bij het meten van zeer kleine weerstanden (kleiner dan enkele ohms) treden andere problemen op, waardoor de meetmethode gewijzigd moet worden. Ten eerste is daar het probleem van het beperkte vermogen van een batterij: als er over een te meten weerstand van - zeg - 1 ohm een meetspanning van 3 volt wordt aangelegd, zou er een stroom van 3 ampère gaan lopen. Dit is veel meer dan een normale batterij kan opbrengen. Daarom wordt bij het meten van zeer kleine weerstanden het meetprincipe omgedraaid: er wordt een bekende meetstroom door de te meten weerstand geforceerd, en de daardoor ontstane spanning wordt gemeten. Een meetstroom van enkele tientallen milliampères (door een batterij goed op te brengen) zal over de al eerder genoemde weerstand van 1 ohm resulteren in een spanning van enkele tientallen millivolt, wat voor een spanningsmeter goed meetbaar is.
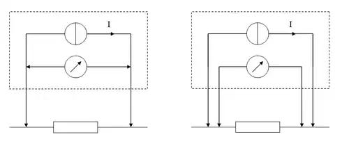
Een tweede probleem is dat bij het meten van zeer kleine weerstanden de overgangsweerstand van de meetklemmen mee gaat spelen. Een meetklem die op een te meten weerstand wordt geplaatst, vormt voor de meetstroom geen weerstandsloze overgang. Afhankelijk van de gebruikte materialen en de mechanische kracht waarmee de klem op het meetstuk wordt geplaatst, kan ter plekke een weerstand van enkele tientallen tot enkele honderden milliohms optreden. Als de te meten weerstand in dezelfde orde van grootte ligt, is de meetfout in dit geval dus zeer aanzienlijk. Daarom wordt bij metingen in het milliohmgebied gebruikgemaakt van de zogenoemde vierpuntsmeting. Hierbij heeft de ohmmeter vier meetklemmen in plaats van twee. Van deze vier worden er twee gebruikt om de meetstroom te forceren, en de twee overige om de resultante spanning te meten (zie ook de afbeelding hieronder).

Links staat de "gewone" meting afgebeeld. De gestippelde lijn is de buitenkant van het meetapparaat (de ohmmeter). Op de plekken van de pijlpunten is een overgangsweerstand aanwezig (met uitzondering van de pijl bij de letter I die de meetstroom symboliseert, en het pijltje in het cirkeltje wat de spanningsmeter symboliseert). Aangezien de twee overgangsweerstanden van de meetklemmen op de te meten weerstand stroom voeren (de meetstroom I), zal daar ook een spanning ontstaan. De spanningsmeter meet dus de resultante spanning over de te meten weerstand plus de twee overgangsweerstanden. Merk op dat de overgangsweerstanden binnenin het apparaat (tussen de tak van de stroombron en de tak van de spanningsmeter) niet resulteren in een spanning, doordat door deze overgangsweerstanden geen of nauwelijks stroom loopt (althans in het geval van een goede, zeer hoogohmige spanningsmeter).
Rechts staat de vierpuntsmeting. In dit geval meet de spanningsmeter alleen de spanning over de te meten weerstand. De overgangsweerstanden tussen de stroomklemmen en de te meten weerstand bouwen wel een spanning op, maar deze wordt niet meegemeten. Ook hier geldt dat de overgangsweerstanden tussen de spanningsmetingsklemmen en de te meten weerstand geen spanning opbouwen, aangezien er geen of nauwelijks stroom doorheen loopt. Het maakt in dit geval overigens niet uit of de spanningsklemmen binnen of buiten de stroomklemmen worden aangesloten. Worden echter de spanningsklemmen op de stroomklemmen of nog dichter bij het meetapparaat geplaatst, dan worden de overgangsweerstanden weer wél meegemeten. (We hebben dan immers weer dezelfde situatie gecreëerd als bij een gewone meting.)